Villa Nofal

This project is located in Sarra, a suburban area to the west of Nablus.
The client wanted a mansion-like view of his future house. Located on a hill and with a modern design of 4 story, the villa appears to the viewer in it's monumental form. 
Using BIM and Revit software, our design team was able to work on the exterior, interior, structure and MEP in parallel. unlocking the full potential of our staff.
Main Exterior Render



Exterior


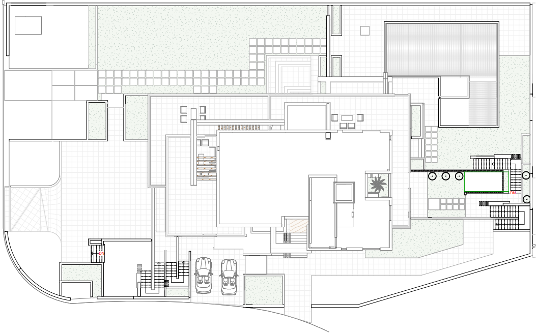
Plans

BIM
Architecture , Structure , MEP


Interior

You may also like

Back to Top